IMPRESSIVE RENOVATED HOME WITH EXQUISITE VIEWS!

Perched at one of the highest points of Katoomba and taking advantage of it with its exquisite views towards the Jamison Valley is this fantastic home which has recently undergone an extensive renovation.

The home is now a wonderful blend of modern convenience & retro styling.

Spread over two levels, you’ll love the space on offer & the flexible floorplan.

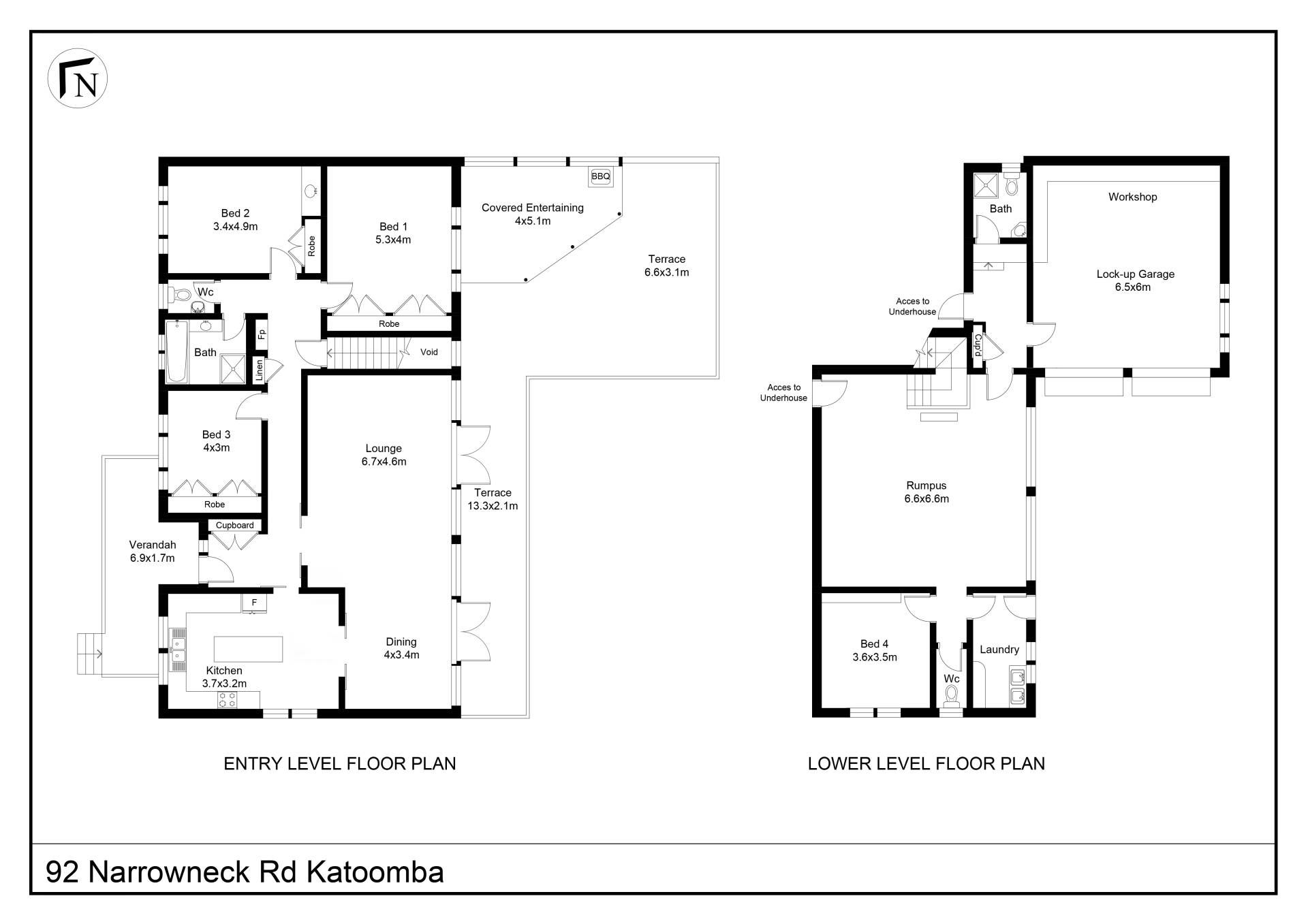
ENTRY LEVEL
-    Incredibly spacious living/dining area with floor to ceiling glazing taking advantage of the views
-    Full length entertaining terrace with undercover area ideal for BBQs throughout all Seasons
-    Large kitchen with stone island, 900mm gas stove and dishwasher
-    Three spacious bedrooms all with built-in robes
-    Stunning brand new bathroom featuring travertine tiling and LED back-lit mirror
-    Separate WC

LOWER LEVEL
-    Huge rumpus room with new gas fireplace
-    Fourth bedroom or office with custom built-in bookshelves
-    Brand new bathroom
-    Separate WC
-    Large laundry
-    Flexible space which could potentially make a great gym/sauna/cellar
-    Internal access to a Double Lock-up Garage

Other features include new hydronic heating throughout, double glazing and keyless ‘smart lock’ on front door.

The block covers 1,137sqms and features a private front garden with a combination of lawn and establish garden beds. The backyard is tiered an ideal to grow your own fruit & veg!

In terms of location, there are literally dozens of lookouts, bushwalks, waterfalls and parklands within walking distance. Katoomba Village and Train Station are just 2.3kms away.

Flexibility is key here and it would be ideal as a large family home, work from home, co-housing or a holiday home.

Land size: 1,137 sqms
Zoning: C4 – Environmental Living
Council rates: $611.10 pq

Features

Deck Terrace/Paved Indoor entertainment area Outdoor entertainment area Undercover outdoor area Fenced Fireplace Close to school Built-in wardrobe Dishwasher Hydronic Heating Floorboards
4 2 2 1,137 m2
Address 92 Narrow Neck Rd, Katoomba
Price SOLD
Property Type Residential
Property ID 1690
Category House
Land Area 1,137 m2

Agent Details

Marc Fitzpatrick photo

Marc Fitzpatrick

02 4784 1991
View Profile